Version: 8.25.1Navigation überspringen
3 annonces

À vendre maison 2 chambres Hellemmes 59800

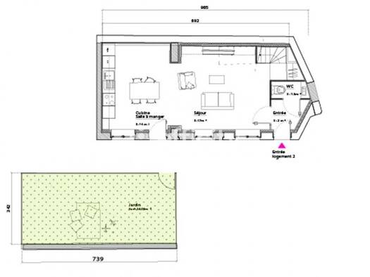
Maison à vendre 139 900 € 3 pièces 2 chambres 52 m² 56 m² de terrain Hellemmes-Les Sarts Lille 59260
E
139 900 € 2 690 €/m²
Maison à vendre
3 pièces
·
2 chambres
·
52 m²
·
56 m² de terrain
Hellemmes-Les Sarts, Lille (59260)
L'agence hellemmoise C'EST POUR TON BIEN, vous propose en exclusivité cette maison de 52m2 habitables, située dans le centre ville d'Hellemmes, à proximité de la place du marché, des écoles et de tou...
ExclusivitéC'EST POUR TON BIEN
Maison à vendre 229 900 € 3 pièces 2 chambres 78 m² 78 m² de terrain Hellemmes-Épine Mont de Terre Lille 59260
D
229 900 € 2 947 €/m²
Maison à vendre
3 pièces
·
2 chambres
·
78 m²
·
78 m² de terrain
Hellemmes-Épine Mont de Terre, Lille (59260)
Exclusivité Square Habitat - Quartier prisé d'Hellemmes, proche du nouveau parc de 5 hectares et de la piscine !! Coup de coeur assuré pour cette maison pleine de charme, située dans un secteur reche...
ExclusivitéSQUARE HABITAT HELLEMMES
Maison de plain-pied à vendre 219 990 € 4 pièces 2 chambres 61 m² 268 m² de terrain Hellemmes-Les Sarts Lille 59800
F
219 990 € 3 606 €/m²
Maison de plain-pied à vendre
4 pièces
·
2 chambres
·
61 m²
·
268 m² de terrain
Hellemmes-Les Sarts, Lille (59800)
59800 - LILLE - 59260-HELLEMMES - 4 PIÈCES - 2 CHAMBRES - BUREAU - MAISON PLAIN PIED AVEC TERRASSE-JARDIN - GARAGE-PROXIMITE COMMERCES-TRANSPORTS Efficity, l'agence qui estime votre bien en ligne, vo...
efficity Rémy Delpage
Plus d'annonces à proximité
Découvrez d'autres annonces dans les environs de Hellemmes, 59800
Maison de ville à vendre 99 000 € 3 pièces 2 chambres 50 m² 24 m² de terrain Caulier Lille 59800
D
99 000 € 1 980 €/m²
Maison de ville à vendre
3 pièces
·
2 chambres
·
50 m²
·
24 m² de terrain
Caulier, Lille (59800)
59000 LILLE – MAISON 2 MITOYENNETES – ENVIRON 50M² - 2 CHAMBRES Efficity, l'agence qui estime votre bien en ligne, vous propose à la vente cette maison à travaux située à Lille Fives, un Quartier en ...
Exclusivitéefficity Florence Kaczmarek
LW NOTAIRES
Maison à vendre 132 750 € 3 pièces 2 chambres Lille 59800
E
132 750 €
Maison à vendre
3 pièces
·
2 chambres
Lille (59800)
Immobilier.notaires® et l'office notarial SAS LW NOTAIRES vous proposent : Maison / villa à vendre - LILLE (59800) - - - - - - - - - - - A VENDRE A LILLE - A 8 MINUTES A PIED DU METRO WAZEMMES, UNE M...
LW NOTAIRES
Maison à vendre 212 000 € 3 pièces 2 chambres 51,6 m² Lille 59000
Nouveau
C
212 000 € 4 109 €/m²
Maison à vendre
3 pièces
·
2 chambres
·
51,6 m²
Lille (59000)
Lille/ Wazemme ( ML5754) L'agence Faelens Immobilier vous propose cette charmante maison entièrement rénovée, idéalement située au coeur du quartier très recherché de Wazemmes. Le rez-de-chaussée s'o...
FAELENS IMMOBILIER
Maison à vendre 99 000 € 3 pièces 2 chambres 50 m² 24 m² de terrain Caulier Lille 59800
G
99 000 € 1 980 €/m²
Maison à vendre
3 pièces
·
2 chambres
·
50 m²
·
24 m² de terrain
Caulier, Lille (59800)
59000 LILLE – MAISON 2 MITOYENNETES – 50M² - 2 CHAMBRES Efficity, l'agence qui estime votre bien en ligne, vous propose à la vente cette maison à travaux située à Lille Fives, un Quartier en pleine t...
efficity Florence Kaczmarek
iad France  Pauline Vercruysse
Maison de plain-pied à vendre 185 000 € 3 pièces 2 chambres 55 m² 166 m² de terrain Becquerel Mons-en-Barœul 59370
D
185 000 € 3 364 €/m²
Maison de plain-pied à vendre
3 pièces
·
2 chambres
·
55 m²
·
166 m² de terrain
Becquerel, Mons-en-Barœul (59370)
iad France - Pauline Vercruysse vous propose: Maison plain-pied 2 chambres – Mons-en-BarOEul – 185 000 euros Située dans une rue calme, cette maison plain-pied rénovée offre un cadre de vie agréable ...
iad France Pauline Vercruysse
Maison à vendre 549 000 € 4 pièces 2 chambres 123,1 m² dès le 30/04/2026 Lille 59000
Nouveau
C
549 000 € 4 461 €/m²
Maison à vendre
4 pièces
·
2 chambres
·
123,1 m²
·
dès le 30/04/2026
Lille (59000)
LILLE Proximité tramway Brossolette ( NV 5756 ) Appartement de standing en duplex avec jardin – Proche tramway. Découvrez ce superbe appartement en duplex offrant des prestations haut de gamme et un ...
FAELENS IMMOBILIER
Maison à vendre 152 500 € 3 pièces 2 chambres 66 m² 89 m² de terrain Fives Lille 59800
Nouveau
E
152 500 € 2 311 €/m²
Maison à vendre
3 pièces
·
2 chambres
·
66 m²
·
89 m² de terrain
Fives, Lille (59800)
Opportunité à Faches-Thumesnil (quartier Mairie) à 10mn de Lille. Christophe Charlet-Six Immobilier vous propose cette Maison de ville 3 pièces – 66 m² – jardinet. Située à proximité immédiate des co...
Agence.immo
AVENUE IMMOBILIER VILLENEUVE-D ASCQ
Maison à vendre 149 000 € 3 pièces 2 chambres 50 m² Villeneuve-d'Ascq 59650
149 000 € 2 980 €/m²
Maison à vendre
3 pièces
·
2 chambres
·
50 m²
Villeneuve-d'Ascq (59650)
Emplacement de premier ordre pour cette maison flamande à la lisière de Brigode et de Ascq village ! Idéal investisseur ou première acquisition. Beau potentiel pour cette maison en double distributio...
AVENUE IMMOBILIER VILLENEUVE-D ASCQ
Maison à vendre 219 000 € 4 pièces 2 chambres 65 m² Villeneuve-d'Ascq 59650
E
219 000 € 3 369 €/m²
Maison à vendre
4 pièces
·
2 chambres
·
65 m²
Villeneuve-d'Ascq (59650)
Laissez-vous séduire par cette maison de 65 m² au cachet unique, idéale pour les amateurs d'authenticité et d'atmosphères chaleureuses. A 150m de l'arrêt de tramway Planche-Epinoy, cette jolie maison...
RIJSEL IMMOBILIER
VASTIMMO
Maison de plain-pied à vendre 210 000 € 3 pièces 2 chambres 70 m² Caulier Lille 59800
Nouveau
E
210 000 € 3 000 €/m²
Maison de plain-pied à vendre
3 pièces
·
2 chambres
·
70 m²
Caulier, Lille (59800)
Lille Référence : FOU220 Lille Située face au Square Lardemer, cette maison plain pied avec une chambre, un bureau (aménagée en chambre actuellement ) et une cour de 29 m² , vous offre tranquillité e...
ExclusivitéVASTIMMO
AVENUE IMMOBILIER WASQUEHAL
Maison à vendre 219 000 € 3 pièces 2 chambres 65 m² 64 m² de terrain Villeneuve-d'Ascq 59491
Nouveau
E
219 000 € 3 369 €/m²
Maison à vendre
3 pièces
·
2 chambres
·
65 m²
·
64 m² de terrain
Villeneuve-d'Ascq (59491)
Avenue Immobilier vous propose cette jolie maison pleine de cachet idéalement située à proximité du tramway Planche Epinoy et de tous les commerces. Elle se compose d'un salon séjour lumineux sur pla...
AVENUE IMMOBILIER WASQUEHAL
LOGEHOME RONCHIN
Maison de plain-pied à vendre 273 000 € 13 pièces 2 chambres 100 m² Lille 59000
Nouveau
D
273 000 € 2 730 €/m²
Maison de plain-pied à vendre
13 pièces
·
2 chambres
·
100 m²
Lille (59000)
Logéhome Ronchin vous propose dans le secteur de Lille Sud, à la limite immédiate de Wattignies, découvrez cette maison de caractère qui combine confort, volumes et fort potentiel d?aménagement, dans...
LOGEHOME RONCHIN
Maison à vendre 210 000 € 3 pièces 2 chambres 78 m² 125 m² de terrain Cité Jardin Ronchin 59790
D
210 000 € 2 692 €/m²
Maison à vendre
3 pièces
·
2 chambres
·
78 m²
·
125 m² de terrain
Cité Jardin, Ronchin (59790)
Située dans la commune de Ronchin, cette maison bénéficie d'un environnement agréable, à proximité de toutes les commodités nécessaires au quotidien. Ronchin offre un cadre de vie paisible, idéal pou...
ExclusivitéSAFTI LANTOINE Gautier conseiller indépendant
Maison à vendre 189 000 € 4 pièces 2 chambres 76 m² 77 m² de terrain Saint Maurice-Pellevoisin Lille 59000
F
189 000 € 2 487 €/m²
Maison à vendre
4 pièces
·
2 chambres
·
76 m²
·
77 m² de terrain
Saint Maurice-Pellevoisin, Lille (59000)
À vendre, maison de 76 m² située dans une rue calme et résidentielle de Saint-Maurice Pellevoisin. Le rez-de-chaussée se compose d'une agréable pièce à vivre, d'une cuisine indépendante à l'arrière, ...
LILLE IMMO
Maison à vendre 148 200 € 4 pièces 2 chambres 85 m² 88 m² de terrain Ronchin 59790
D
148 200 € 1 744 €/m²
Maison à vendre
4 pièces
·
2 chambres
·
85 m²
·
88 m² de terrain
Ronchin (59790)
Immobilier.notaires® et l'office notarial SELARL NOTAIRES LILLE ROYALE vous proposent : Maison / villa à vendre - RONCHIN (59790) - - - - - - - - - - - RONCHIN Maison d'une surface d'environ 85 m² co...
NOTAIRES LILLE ROYALE
Maison à vendre 336 000 € 3 pièces 2 chambres 83 m² 487 m² de terrain Villeneuve-d'Ascq 59650
D
336 000 € 4 048 €/m²
Maison à vendre
3 pièces
·
2 chambres
·
83 m²
·
487 m² de terrain
Villeneuve-d'Ascq (59650)
En exclusivité,Secteur Flers, venez découvrir cette maison semi individuelle Vous serez séduit par une belle pièce de vie lumineuse avec cheminée. La cuisine, baignée de lumière, dispose d'un agréabl...
ExclusivitéABRINOR VILLENEUVE D'ASCQ
Maison à vendre 410 000 € 3 pièces 2 chambres 80 m² 50 m² de terrain Moulins Lille 59000
410 000 € 5 125 €/m²
Maison à vendre
3 pièces
·
2 chambres
·
80 m²
·
50 m² de terrain
Moulins, Lille (59000)
LILLE MAISON R+1 – 71,5 m² AVEC JARDIN – OPPORTUNITÉ RARE ! Efficity Hélène Ponchon, l'agence qui estime votre bien en ligne, vous propose une réhabilitation totale: une maison de 67 m², idéalement c...
efficity Hélène Ponchon
AFEDIM TRANSACTIONS
Maison à vendre 261 170 € 4 pièces 2 chambres 89,1 m² 374 m² de terrain Lille 59000
D
261 170 € 2 931 €/m²
Maison à vendre
4 pièces
·
2 chambres
·
89,1 m²
·
374 m² de terrain
Lille (59000)
Maison semi individuelle en Briques des Années 30. Secteur Lille-Sud, proximité Lillenium. Situation idéale avec proximité immédiate du CHU, des commerces, écoles, du centre commercial Lillenium, du ...
ExclusivitéAFEDIM TRANSACTIONS
AGENCE CAPPELLE
Maison à vendre 102 720 € 3 pièces 2 chambres 45 m² 20 m² de terrain Moulins Lille 59000
F
102 720 € 2 283 €/m²
Maison à vendre
3 pièces
·
2 chambres
·
45 m²
·
20 m² de terrain
Moulins, Lille (59000)
Secteur Moulins à LILLE, à proximité d'un espace de jeux pour enfants et de la Faculté de Droit, je suis une maison de courée de 45M² habitable comprenant au rez-de-chaussée : un séjour avec un coin ...
AGENCE CAPPELLE
Maison à vendre 395 000 € 3 pièces 2 chambres 70 m² 60 m² de terrain Moulins Lille 59000
395 000 € 5 643 €/m²
Maison à vendre
3 pièces
·
2 chambres
·
70 m²
·
60 m² de terrain
Moulins, Lille (59000)
LILLE - JB LEBAS/ SAINT SAUVEUR – MAISON- 2 CHAMBRES - 70 m² avec JARDIN PRIVATIF- effiCity, l'agence qui estime votre bien en ligne, vous propose une maison d'exception de 2 chambres, d'une superfic...
efficity Hélène Ponchon
AVENUE IMMOBILIER VILLENEUVE-D ASCQ
Maison à vendre 209 000 € 4 pièces 2 chambres 88 m² 59 m² de terrain Villeneuve-d'Ascq 59493
Nouveau
E
209 000 € 2 375 €/m²
Maison à vendre
4 pièces
·
2 chambres
·
88 m²
·
59 m² de terrain
Villeneuve-d'Ascq (59493)
En exclusivité chez Avenue Immobilier ! Véritable compromis entre maison et appartement, ce bien atypique séduira celles et ceux qui recherchent le confort d’une maison sans les contraintes ni les ch...
AVENUE IMMOBILIER VILLENEUVE-D ASCQ
Maison à vendre 153 000 € 3 pièces 2 chambres 68 m² Ronchin 59790
E
153 000 € 2 250 €/m²
Maison à vendre
3 pièces
·
2 chambres
·
68 m²
Ronchin (59790)
Petit Ronchin, proximité centre-ville, maison 1930 à conforter comprenant un hall d'entrée, un salon/séjour de 23m² environ, une cuisine à aménager de 10,60m² environ, une salle de bains à revoir, de...
FRANCOIS QUECQ D HENRIPERT MARC SENECHAL VALERIE AMEGNIGAN-MEL
À quel point êtes-vous satisfait de cette page (pas des annonces elles-mêmes) ?
Vos tendances immo
Prix immobilier par m²
Avril 2026
Apartment building illustration
Appartement
3 370 €/m²
Prix le plus bas
2 202 €/m²
Prix le plus élevé
4 693 €/m²
House illustration
Maison
3 493 €/m²
Prix le plus bas
1 675 €/m²
Prix le plus élevé
5 834 €/m²
Évolution des prix
Explorez les tendances immo localement et sur le marché plus large au cours des 5 dernières années.
1 mois
+0.1%
6 mois
+0.6%
1 an
+2.1%
5 ans
-0.8%
Lille
Hauts-De-France
Zoom sur le marchéAccédez aux prix détaillés des biens immobiliers, jusqu'à l'adresse exacte.